重慶兩江新盛投資管理有限公司(以下簡稱“兩江新盛公司”)是重慶兩江投資集團的全資子公司,成立于2011年5月19日,注冊資金10億元,由其投資建設的位于重慶市兩江新區萬壽雅苑、龍駿雅苑、天堡雅苑、上領雅苑、新能雅苑、清溪雅苑的配套商業,現面向社會公開招租。
一、項目簡介
(一)萬壽雅苑
萬壽雅苑位于兩江新區水土新城,總建筑面積約100萬平方米,配套商業約10萬平方米,住宅戶數約1.7萬套,預計居住人口可達5萬人。現階段,住宅配租約14000套,居住人口約35000人,主要服務于周邊60多個高新技術企業,如重慶京東方光電科技有限公司、重慶萊寶科技有限公司、重慶兩江聯創電子科技有限公司、北大醫藥重慶大新藥業股份有限公司、重慶超硅半導體有限公司等。本項目將打造成為輻射水土、靜觀、復興片區的生態地標性全業態商業中心。
(二)龍駿雅苑
龍駿雅苑位于兩江新區龍盛新城龍興片區(重慶理工大學兩江校區旁),總建筑面積約50萬平方米,配套商業約5.6萬平方米,住宅戶數約8200套,預計居住人口可達2.1萬人。現階段,住宅配租約7600套,居住人口約19000人,主要服務于周邊50多個高新技術企業,如西北工業大學重慶科創中心、北京理工大學重慶創新中心、賽力斯汽車有限公司、重慶金世利航空材料有限公司、重慶渝翔航空飛行培訓有限責任公司等。本項目將打造成為服務理工大學、協同創新區的商務休閑區域商業中心。
(三)天堡雅苑
天堡雅苑位于兩江新區龍盛新城龍興片區,總建筑面積約53萬平方米,配套商業約3.9萬平方米,住宅戶數約9000套,預計居住人口可達2.3萬人。現階段,住宅配租約7600套,居住人口約19000人,主要服務于周邊30多個高新技術企業,如重慶滬光汽車電器有限公司、重慶長安汽車股份有限公司、重慶桂諾光電科技有限公司等。本項目將打造成為獨具特色的休閑生活風情商業街區。
(四)上領雅苑
上領雅苑位于兩江新區龍盛新城龍興片區,總建筑面積約15萬平方米,配套商業約1萬平方米,住宅戶數約1400套,預計居住人口可達4000人。現階段,住宅配租約1300套,居住人口約3300人,主要服務于周邊20多個高新技術企業,如上汽通用五菱汽車股份有限公司重慶分公司、東風物流(武漢)有限公司、上海毓恬冠佳科技股份有限公司重慶分公司、重慶文燦壓鑄有限公司等。本項目將打造成為服務五菱廠區、龍盛中德產業園等企業的商務休閑區域商業中心。
(五)新能雅苑
新能雅苑位于兩江新區龍盛新城魚復片區,總建筑面積約38萬平方米,配套商業約4萬平方米,住宅戶數約5700套,預計居住人口可達1.5萬人。現階段,住宅配租約5600套,居住人口約14000人,主要服務于周邊50多個高新技術企業,如重慶長安汽車股份有限公司、重慶潤通工業股份有限公司、重慶中車長客軌道車輛有限公司、奧特斯科技(重慶)有限公司、重慶韓泰輪胎有限公司、重慶失崎儀表有限公司等。本項目將打造成為魚復片區自具特色的配套商業街區。
(六)清溪雅苑
清溪雅苑位于兩江新區龍盛新城魚復片區,總建筑面積約2.3萬平方米,配套商業約0.9萬平米,住宅戶數約4044套,預計居住人口可達10000人。現階段,住宅配租約4000套,居住人口約10000人,主要服務于周邊20多個高新技術企業,如重慶金康賽力斯汽車有限公司、重慶卓通汽車工業有限公司、重慶瑞馳汽車實業有限公司、重慶艾禮富電子有限公司等。本項目將打造成為輻射復盛片區商務休閑區域商業中心。
二、招租區域及面積
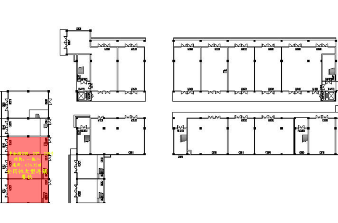
(一)萬壽雅苑:41、42、44、45號樓局部,招租面積1306.27平方米。


▲萬壽雅苑41、42號商業樓第一層局部平面圖

▲萬壽雅苑44、45號商業樓第一層局部平面圖

▲萬壽雅苑44、45號商業樓第三層局部平面圖
(二)龍駿雅苑:24號商業樓局部,招租面積1586.27平方米。


▲龍駿雅苑24號商業樓第負三層局部平面圖

▲龍駿雅苑24號商業樓第負二層局部平面圖

▲龍駿雅苑24號商業樓第負二層局部平面圖

▲龍駿雅苑24號商業樓第負一層局部平面圖

▲龍駿雅苑24號商業樓第負一層局部平面圖
(三)天堡雅苑:8、10號商業樓局部,招租面積678.28平方米。


▲天堡雅苑8號商業樓第一層局部平面圖

▲天堡雅苑10號商業樓第一層平面圖
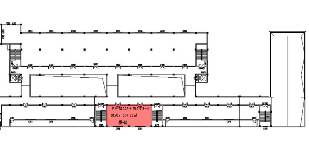
(四)上領雅苑:一期商業吊二層局部,招租面積366.58平方米。


▲上領雅苑一期商業吊一層局部平面圖
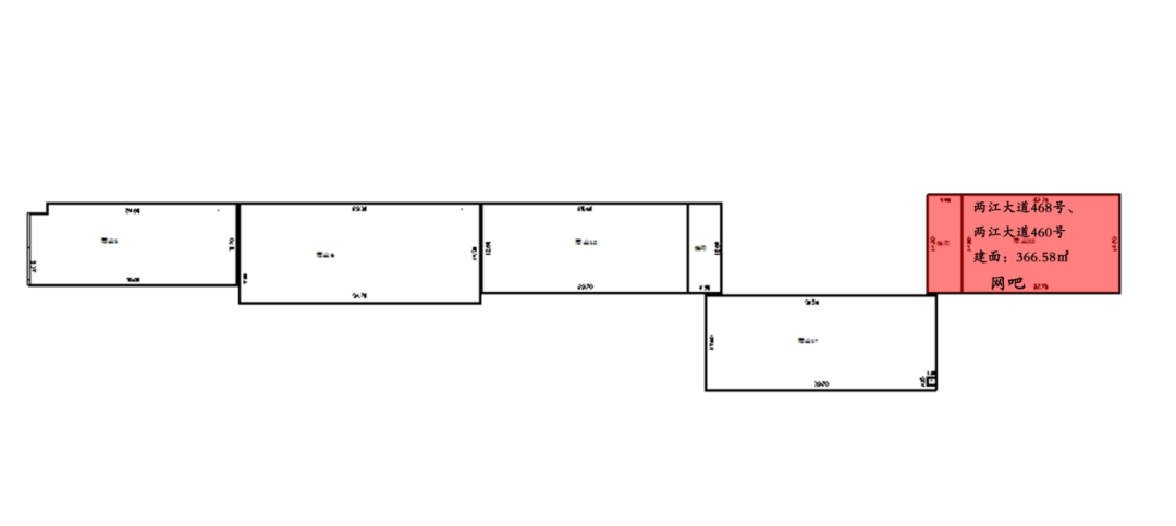
(五)新能雅苑:E3號商業樓局部,招租面積954.23平方米。


▲新能雅苑E3商業部分平面圖

▲新能雅苑E5商業樓第一層局部平面圖
(六)清溪雅苑:8、9號商業樓局部,招租面積84.34平方米。


▲清溪雅苑8、9商業樓第一層局部平面圖
三、業態規劃及招租政策
(詳見附件1)



四、招租方式及對象
(一)招租方式
1.本次招租在公平公正原則下,采用公開競標(一次性暗標)。
2.開標當日現場提交標書至公證人員處,現場開標,在同一鋪號中取租金報價最高者為中標人。
3.本次招租商鋪均為存續經營狀態,招租條件中不再另行給予裝修期、免租期,原承租人參與公開競標時,同等條件下享有優先承租權。
優先承租權,即原承租人租金報價不是現場最高報價時,可按最高報價優先其他競標人取得該商鋪繼續承租權;原承租人投標報價與投標現場最高報價相同時,原承租人也享有優先承租權。享有優先承租權的原承租人參與競標時,公證單位需根據現場報價實際情況,當場向原承租人明確是否行使或放棄優先承租權,并當場完善確認手續。若原承租人放棄優先承租權,則由最高報價競標人取得該商鋪承租權。
(二)招租對象
符合報名條件,且在規定時間內(報名時間截止前)足額繳納投標保證金的競標人。
五、招租組織
(一)報名時間:截止到2025年7月7日17:00,競標人通過線上轉賬方式繳納投標保證金的,保證金轉出時間不得晚于報名截止時間,且該筆保證金到賬時間不得晚于2025年7月7日17:00,否則視為報名無效且不能參與本次招租競標活動。
(二)繳納投標保證金
1.銀行轉賬方式:開戶名(重慶兩江新盛投資管理有限公司),開戶行(中國銀行重慶金山支行),銀行賬號(110215517557)。轉賬時,請務必備注競標商鋪號、競標人姓名、聯系電話等信息,確保通訊暢通,便于后續重要事項及時通知。
(示例:天韻路××號+張三+136××××)。
(若字數受限,可通過以下聯系電話以短信方式發送完整信息)。
2.現場繳納方式:在兩江新盛公司(渝北區普福大道459號龍駿雅苑23號商業樓人工智能學院區域315室,聯系電話02367821690,02363088229,18696672053,18581292739)或者在龍興、魚復、水土三個片區任一房管中心均可繳納。現場繳納時,請務必備注競標商鋪號、競標人姓名、聯系電話等信息,確保通訊暢通,便于后續重要事項及時通知。
(三)領取兩江新盛配套商業競標標書時間:2025年6月24日—2025年7月7日(現場領取時間09:00—17:30)。
(四)領取競標標書方式:在招租公告中下載打印(要求A4紙單面)(詳見附件2)或在繳納投標保證金后前往兩江新盛公司(渝北區普福大道459號龍駿雅苑23號商業樓人工智能學院區域315室,聯系電話02367821690,02363088229,18696672053,18581292739)或在龍興、魚復、水土三個片區任一房管中心領取。
(五)提交競標標書時間:暫定 2025年7月8日上午09:30—10:00,上述時間若有調整,將以電話、短信或公告任一形式告知,超過標書提交時間,不再接收標書。
(六)開標時間:暫定2025年7月8日上午10:00,上述時間若有調整,將以電話、短信或公告任一形式告知,現場按照商鋪開標順序,依次進行開標。
(七)開標地點:渝北區龍興鎮龍駿社區二樓大會議室(導航地址咨詢電話18696672053,18581292739)。
(八)參加單位及人員
1.招標人:兩江新盛公司;
2.競標人:按時足額繳納投標保證金、遞交競標標書的意向商戶;
3.監督人:兩江新盛公司派出監督人員;
4.公證人:重慶市渝北公證處。
(九)開標流程
1.競標人需提交有效身份證件、繳納投標保證金收據原件或繳費憑證或繳費記錄等資料完成簽到,自備兩份密封完好競標標書,在進入競標現場時一份提交給招標單位,在競標開始后一份提交給公證單位;
2.工作人員引導競標人就座;
3.主持人介紹本次開標項目、參加單位及人員情況;
4.公證處人員現場展示標書,唱標;
5.公證人宣布中標人;
6.監督人員、公證人員、記錄人員填寫現場開標記錄表,核對無誤后簽字;
7.競標人對現場開標記錄表確認無誤后簽字;
8.工作人員引導競標人離場。
六、競標細則
(一)本次投標可接受競標人的合法程序委托。同一個人、企業僅能書面委托一人代表其參加競標。
(二)享有優先承租權的原承租人為個人的,須本人親自參與公開招投標,否則視為放棄優先承租權。
1.原承租人投標報價與投標現場最高報價相同時,原承租人享有優先承租權;若原承租人放棄優先承租權,則由投標現場最高報價的競標人中標。
2.原承租人投標報價低于投標現場最高報價時,但在開標現場書面承諾按投標現場最高報價同樣價格承租的,原承租人享有優先承租權。若原承租人放棄優先承租權,則由投標現場最高報價的競標人中標。
(三)競標人報價須以“元”為單位的整數且報價不得低于底價,否則視為廢標。
(四)標書提交要求
1.標書構成(一式兩份,兩個密封袋)。
a.兩江新盛公司商業競標標書*2;
b.競標人身份證復印件*2;
c.繳納投標保證金的收據或繳費憑證或繳費記錄復印件*2;
d.受個人、企業委托者須提交授權委托書復印件*2;
e.原商鋪租賃合同復印件*2(原承租人提供)。
此類資料裝訂成冊,一式兩份(以上文件為復印件的需攜帶原件備查)。
2.填報要求:按固定模板填寫完整,不得對標書的固定模板做任何修改,否則視為無效標書;標書填寫內容不得作任何涂改,否則視為無效標書;提交招標單位和公證單位的兩份競標標書的內容保持一致,否則視為無效標書。
3.提交要求:裝袋密封,在封口外標注競標人身份信息、競標商鋪鋪號,企業競標人須法人代表或授權代表人簽名并蓋企業公章;未按要求提交,含有違反國家法律、法規內容、造假的標書一律視為無效標書;競標人提交標書時需出示與標書信息相符的身份證明及繳納投標保證金收據原件或繳費憑證或繳費記錄,否則不予接受標書。
(五)如出現多個相同租金報價為最高時,而原承租人放棄優先承租權,則以現場抽簽的方式選出中標人。
(六)現場開標結束,競標人核對無誤后在《現場開標記錄表》上簽字確認;如競標人不予簽字,則其繳納的投標保證金不予退還。
(七)招租政策表中備注欄顯示出將兩個或以上門牌號商鋪組合招租的,中標人不得擅自進行分割經營(若物業現狀存有隔墻的由中標人自費自行拆除)。該組合商鋪實際經營業態與招租業態保持一致,且實際經營品牌僅限于某單一品牌,且實際經營品類僅限于某單一品類,且裝修風格具有統一性完整性,該組合商鋪僅限辦理一份營業執照。
(八)中標人應在通知后3個工作日內與兩江新盛公司簽訂商業租賃合同。如遇特殊情況,則由兩江新盛公司另行通知。
七、流標處理辦法
若中標人,在開標現場或開標結束后放棄中標資格,不按時簽約或放棄(取消)簽約,均視為流標,由招標人對本商鋪進行重新招租。中標人發生任一上述行為,則其所繳納投標保證金一律不予退還,且該中標人在五年之內不得參與兩江新盛公司所屬配套商業的招租活動。
八、投標相關注意事項
(一)商鋪按現狀交房,填寫競標標書前,請競標人務必自行到商鋪現場實地踏勘,對存有質疑的內容,必須在競標前書面提交質疑,若競標人現場踏勘后未提出相關書面質疑或競標人不自行現場踏勘,視同對本次競標商鋪的所有現狀均認可,且無任何異議,中標后因此可能存在的風險和產生的后果均由競標人自行全部承擔。
(二)競標標書一旦提交,則視為認可該商鋪的實際交房條件,中標人不得以此為由,發生包括不限于延遲接房、拒絕接房、申請降租、免租、遲繳拒繳租金、要求補償等任何形式損害招標人利益的行為。
(三)商業租賃合同樣本公示于招租公告中(詳見附件3),請競標人在填寫競標標書前自行前往查看,競標標書一旦提交則視為對合同條款表示全部認可。
(四)中標人在租賃期限內,未經甲方書面同意不得將中標商鋪全部或部分進行轉租、分租、轉讓、轉借或調換使用并賺取價差,不得擅自改變租賃商鋪經營業態。
(五)商鋪物業費按照物業公司統一收費標準自行繳納。
(六)中標人所繳納投標保證金直接轉為履約保證金或租金,未中標或開標前放棄競標商戶所繳納的投標保證金在書面確認后60個工作日內無息退還。
(七)中標人對中標商鋪裝修前須提交店招設計及裝修圖紙,按照順序需經項目所在物業公司和房管中心初審,經房屋租售部(渝北區普福大道459號龍駿雅苑23號商業樓人工智能學院區域315室)審核后再行裝修施工。
(八)中標人因經營需要,須在不損害招標人利益,取得招標人及相關政府職能部門書面同意的情況下,對此次招租物業進行改造,相關費用自行承擔;在承租期期滿或提前終止租賃合同時,簽約人應當保持房屋及設施的完好狀態,不得留存物品或影響房屋的正常使用,招標人有權要求簽約人將房屋及附屬設施全部或部分恢復至交付使用時的原貌。
(九)本次招租區域商業樓已取得不動產權證,中標人在此條件下自行自費辦理相關一切經營手續,中標人不得以此為由,發生包括不限于延遲接房、拒絕接房、申請降租、延長免租、拒繳遲繳租金、要求補償等任何形式損害招標人利益的行為。
(十)商鋪實際接房時間以本公司另行書面通知為準。
(十一)競標人確保在近三年內的經營活動沒有重大違法記錄和招投標不良記錄,同時不存在被法院納入失信人員記錄,否則取消中標資格,其所繳納的投標保證金不予退還。
(十二)該公告所有內容,最終解釋權歸本公司所有。
重慶兩江新盛投資管理有限公司
2025年6月23日
掃碼查看附件
附件1:2025年第三季度到期商鋪商務政策匯總表
▼

附件2:競標標書
▼

附件3:租賃合同模板
▼

通訊員:新盛公司
重慶兩江新區
? 2020 重慶兩江新區開發投資集團有限公司 版權所有 渝ICP備2020014939號-1
渝公網安備 50011202502943號網站建設:指引科技